141 538 ₽/м²
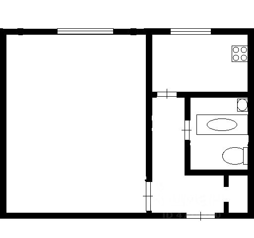
Зеленый экологически чистый район города Голицыно Одинцовского района Московской области. Вторая линия домов. Кирпичный дом. Перекрытия: железобетонные. Чистый подъезд. Продается светлая однокомнатная квартира. Полы: паркет, в кухне - линолеум, в ванной - плитка. Стены: обои, в ванной - плитка. Централизованное снабжение горячей водой. Удобная планировка. Прихожая со встроенным шкафом. Жилая комната с выходом на остекленный балкон. Кухня (плита газовая). Санузел совмещенный (с ванной). Окна во двор, панорамный вид. Квартира меблирована (продается с мебелью). Во дворе - детская площадка, спортивная площадка, зона отдыха, свободный паркинг для машин. Рядом находится лес, Верхний Голицынский пруд с оборудованными зонами отдыха. Развита инфраструктура: детские сады, школы, магазины, торговые и развлекательные центры, медицинские учреждения, кафе. Транспортная доступность: удобный выезд на Минское шоссе; до железнодорожной станции Голицыно - 20 минут пешком (электричка до Белорусского вокзала). Один взрослый собственник. Документам более пяти лет. Свободная продажа.















































































